Dieses vielseitig nutzbare Ecklokal, liegt im Erdgeschoss an der zentralen und damit gut frequentierten Zufahrtsstraße in den Ortsteil.
Durch die hohe Anzahl der Pendler im Ortsteil, die dieses Ladenlokal täglich passieren, und die gegenüberliegende Bushaltestelle, bietet Ihnen diese Immobilie ein hohes Maß an Aufmerksamkeit.
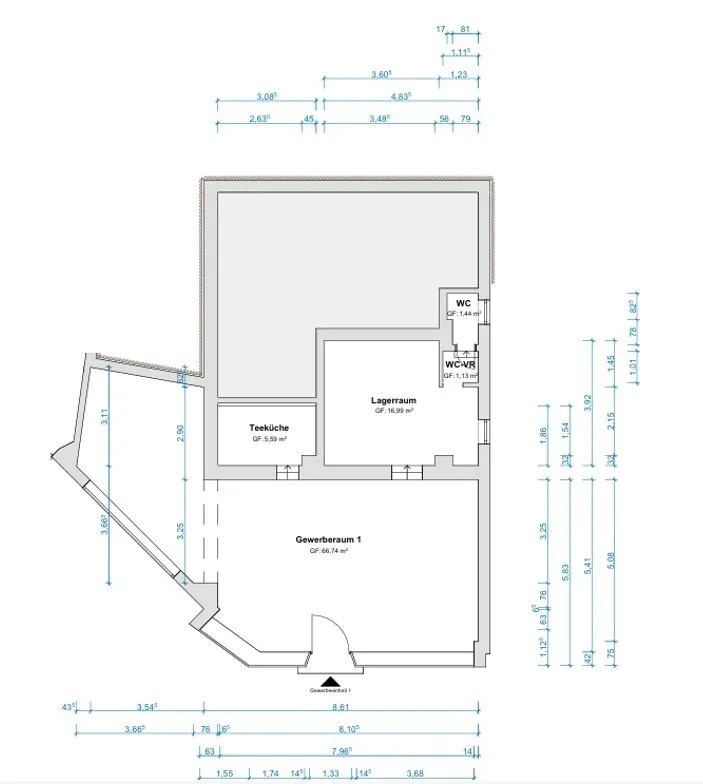
Das ca. 95 m² große Ladenlokal ist über eine Stufe zu erreichen und teilt auf eine ca.65 m² große Hauptfläche mit einer ca. 11 m langen Schaufensterfront sowie ca. 30 m² Nebenflächen auf.
Bei Bedarf könnte die Hauptfläche auch in zwei getrennte Bereiche unterteilt werden.
Die Nebenfläche teilt sich auf zwei, etwas höhenversetzte Räume sowie ein WC auf. Einer dieser Räume verfügt über einen Wasseranschluss und könnte somit als Küche genutzt werden, der andere als Lagerraum.
Es besteht die Möglichkeit, entweder die gesamte Fläche oder alternativ eine reduzierte Fläche von ca. 78m² ohne den seitlichen vorderen Bereich (Anbau links ca. 17m²) anzumieten.
Ihre Kunden können direkt vor oder neben dem Ladenlokal parken, insgesamt stehen drei Parkplätze zur Verfügung. Weitere öffentlcihe Parkmöglichkeiten sind in den angrenzenden Nebenstraßen vorhanden.
Dieser Standort eignet sich für eine Vielzahl von Branchen, darunter Rechtsanwälte, Steuerberater, Architekten, Pflegedienste, Physiotherapeuten, Versicherungen, Fahrschulen, Bäckereien und Weinhandlungen.
Ein besonderes Angebot des Vermieters ist die Bereitschaft, sich an Renovierungs-/ oder Modernisierungsmaßnahmen zu beteiligen, was je nach Bedarf den Mietpreis beeinflussen kann.
Nutzen Sie diese Gelegenheit, um Ihr (neues) Geschäft in Berchum erfolgreich zu etablieren!
Lage: Hagen-Berchum, direkt an der zentralen Zufahrtsstraße
Etage: Erdgeschoss, nur eine Treppenstufe
Verkaufs-/ Ausstellungsfläche: Ca. 65 m²
Weitere Nutzfläche: Ca. 30 m² Lager, Küche und WC
Eingangstür: Aluminium mit Glaseinsatz und Mehrfachverriegelung
Fenster: Metallfenster Einfachverglasung
Schaufensterfront: Ca. 11 m zur Zufahrtsstraße
Beleuchtung: Hängeleuchten
Bodenbelag: PVC-Platten, Fliesen
Starkstrom: Vorhanden
Sanitäranlage: Personaltoilette mit Fenster
Heizungsart: Ölzentralheizung, Verbrauch wird über Wärmemengenzähler abgelesen
Klimaanlage: Möglich
PKW-Stellplätze: 3,Außenstellplätze, ein Außenstellplatz neben sowie zwei Stellplätze vor dem Objekt,im Mietpreis enthalten,
Außenwerbung: Werbeträger vorhanden, zudem Folierung der 11 m Schaufensterfront möglich
Nebenkosten: 80 €/Monat, darin enthalten sind: Grundbesitzabgaben, Wasser, Gebäudeversicherung, zzgl. 60 €/ Monat Heizkostenvorauszahlungen (nach Verbrauch, die Werte beziehen sich auf Abrechnung des Vormieters)
Sonstiges: Eine mögliche Beteiligung an Renovierungs- bzw. Modernisierungsmaßnahmen durch den Eigentümer erfolgt in Absprache mit dem neuen Mieter. Durch die möglichen Renovierungs-/Modernisierungsmaßnahmen verändert sich entsprechend der Mietpreis.
Verkehrsanbindung:
Busanbindung: Direkt gegenüber dem Ladenlokal
Autobahnanbindung A1/ A46: Ca. 5 Autominuten
Hohenlimburg: Ca. 7 min
Hagener Innenstadt: Ca. 10 min.
Dortmunder Innenstadt: Ca. 15 min.
Dortmunder Flughafen: Ca. 25 min.
Berchum ist ein beliebter Stadtteil im Nordosten von Hagen. Mit seinen derzeit ca. 1.600 Einwohnern besitzt der idyllische Stadtteil einen dörflichen Charakter. Die Wälder rund um Berchum laden zu herrlichen Spaziergängen. ein. Ein Kindergarten und eine Grundschule sind mit kurzen Fußwegen erreichbar. Weiterführende Schulen sind mittels Busverbindung in Hagen und Hohenlimburg unproblematisch erreichbar. Berchum ist insgesamt verkehrsgünstig gelegen. Sie gelangen schnell auf die Autobahnen A1 und A46. Das wachsende Einkaufsgebiet im Stadtteil Hohenlimburg-Elsey oder Hagen-Boele ist ideal für Besorgungen des täglichen Bedarfs.
Verkehrsanbindung:
Busanbindung: Direkt gegenüber dem Ladenlokal
Autobahnanbindung A1/ A46: Ca. 5 Autominuten
Hohenlimburg: Ca. 7 min
Hagener Innenstadt: Ca. 10 min.
Dortmunder Innenstadt: Ca. 15 min.
Dortmunder Flughafen: Ca. 25 min.
Energieausweis: Bedarfsausweis gültig von: 01.03.2020
Endenergiebedarf Wärme: 573.1 kWh/(m²a)
Endenergiebedarf Strom: 27.0 kWh/(m²a)
Wesentliche Energieträger Heizung: Befeuerung Oel
Baujahr: 1953