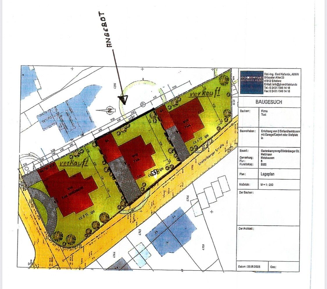
Neubauvorhaben Mettmann – Metzkausen
1 Familienhaus / Villa

Refrath-Zentrum: die perfekte Wohnung für Singles

Hochparterre 4-Zi.-Wohnung in Boscheln – Balkon, Grünblick, vermietet & perfekte Kapitalanlage

Renovierte 4-Zimmer-Wohnung im Herzen von Bergisch Gladbach

Individuelles, großzügiges Reihenhaus
Düsseldorf-Garath / Urdenbacher Kämpe

Haus Grotenbach – Willkommen daheim! Seniorenwohnen in netter Gemeinschaft

Reihenhaus (WEG) mit Garage, Keller und Garten

Attraktive Bürofläche in charmanten Zweifamilienhaus im Westerwald!

Traumhafte Wohnung in charmanten Zweifamilienhaus im Westerwald!

*RESERVIERT* Solides Einfamilienhaus mit Einliegerwohnung in guter, zentraler Wohnlage!