Sie haben Fragen?   0231 / 527923 bis 25

Etagenwohnung in zentraler Innenstadtlage von Werl

59457 
Werl
Objektnr.: 20054-2869
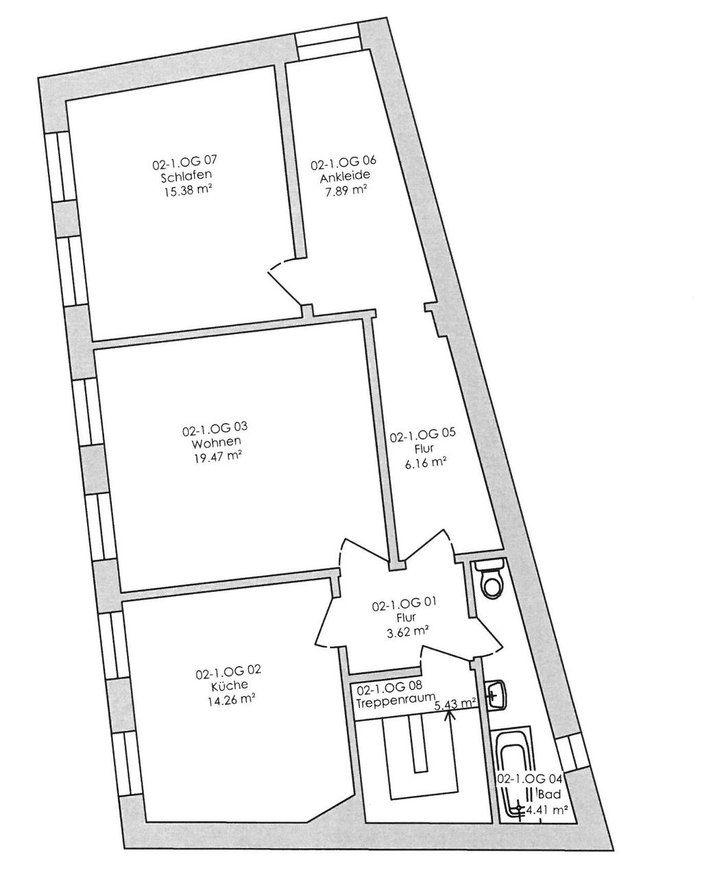
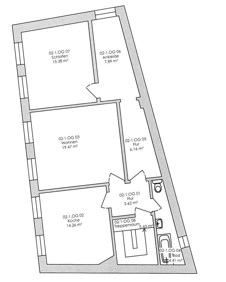
Zimmer: 2
  ·  
Wohnfl.: 70 m²
420 €
Verkaufen
Ansprechpartner
Immobilien R. Schneider KG
Herr Rudolf Schneider

Tel.: 0231 / 527923 bis 25
info@immob-schneider.de

Standort der Immobilie

Sie sehen gerade einen Platzhalterinhalt von Google Maps. Um auf den eigentlichen Inhalt zuzugreifen, klicken Sie auf die Schaltfläche unten. Bitte beachten Sie, dass dabei Daten an Drittanbieter weitergegeben werden.

Mehr Informationen

Sie möchten verkaufen?

Senden Sie uns jetzt eine unverbindliche Verkaufsanfrage – wir begleiten Sie zuverlässig beim gesamten Verkaufsprozess.

Zur Verkaufsanfrage »

Objektangaben

Kaltmiete
420 €
Nebenkosten
120 €
Kaution
840 €
Preiseinheit
EUR
Wohnfläche
70 m²
Zimmer
2
Etage
1
Anzahl Zimmer
2
Anzahl Wohneinheiten
3
verfügbar ab
01.05.2026

Energieausweis

Baujahr
1910
Energieausweistyp
Bedarf
Energieausweis gültig bis
23.11.2030
Endenergiebedarf
217.1 kWh/(m²*a)
Energieeffizienzklasse
G
Energieausweis Wärmewert
217.1 kWh/(m²*a)
Energieausweis Baujahr
1910
Wesentlicher Energieträger
Gas
Energieausweis
2014
Energieausweis Ausstellungsdatum
24.11.2020
Befeuerungsart
Gas
Heizungsart
Etagenheizung

Energiebedarf

  • A+
  • A
  • B
  • C
  • D
  • E
  • F
  • G
  • H
0255075100125150175200225250
217,10 kWh/(m²*a)
Anfrageformular
* Pflichtfelder
 
   Ihre Daten werden verschlüsselt übertragen, vertraulich behandelt und nicht an Dritte weitergegeben.
Ähnliche Immobilien

Finden Sie hier eine Auswahl von ähnlichen Objekten aus der Umgebung.

53639 
Königswinter
-Oberpleis
Badezimmer: 1
  ·  
Zimmer: 3
  ·  
Stellplätze: 1
1.450 € 
40217 
Düsseldorf
-Friedrichstadt
Badezimmer: 1
  ·  
Zimmer: 3
  ·  
Wohnfl.: 111 m²
1.548 € 
52385 
Nideggen
-Nideggen
Badezimmer: 1
  ·  
Zimmer: 2
  ·  
Stellplätze: 1
580 € 
52385 
Nideggen
Badezimmer: 1
  ·  
Zimmer: 2
  ·  
Stellplätze: 1
580 € 
44135 
Dortmund
-Mitte
Zimmer: 3
  ·  
Wohnfl.: 81 m²
  ·  
Nutzfl.: 81 m²
695 € 
59368 
Werne
-Stadtmitte
Zimmer: 1
  ·  
Wohnfl.: 59 m²
749,10 € 
56424 
Staudt
Badezimmer: 1
  ·  
Zimmer: 3
  ·  
Wohnfl.: 73 m²
620 € 
57614 
Wahlrod
Badezimmer: 1
  ·  
Zimmer: 5
  ·  
Stellplätze: 1
1.100 € 
47798 
Krefeld
Badezimmer: 1
  ·  
Zimmer: 3
  ·  
Wohnfl.: 60 m²
500 € 
46487 
Wesel
Badezimmer: 1
  ·  
Zimmer: 4
  ·  
Stellplätze: 1
1.160 € 
53121 
Bonn
-Endenich
Badezimmer: 1
  ·  
Zimmer: 1
  ·  
Wohnfl.: 24,60 m²
650 € 
47799 
Krefeld
Zimmer: 4
  ·  
Wohnfl.: 83 m²
664 €