Sie haben Fragen?   0231 / 527923 bis 25

Attraktives Mehrfamilienhaus in Jülich mit 6 Einheiten, 17 Zimmern, starke Rendite & Ausbaupotenzial

52428 
Jülich
Objektnr.: 20049-3704
Badezimmer: 6
  ·  
Zimmer: 17
  ·  
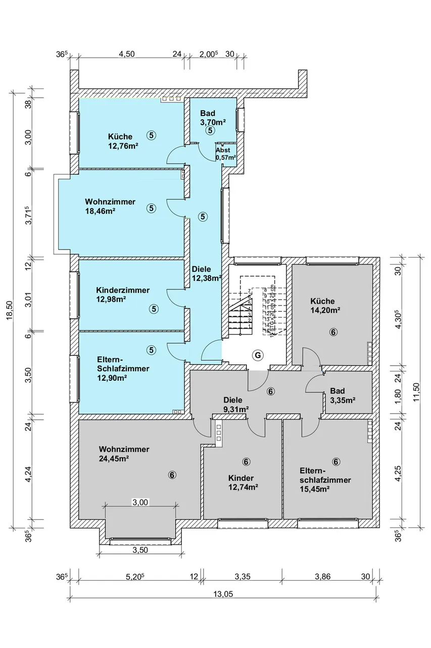
Wohnfl.: 446 m²
859.000 €
Käuferprovision: 3,57% inkl. MwSt.
Verkaufen
Ansprechpartner
Immobilien R. Schneider KG
Herr Rudolf Schneider

Tel.: 0231 / 527923 bis 25
info@immob-schneider.de

Standort der Immobilie

Google Maps

Mit dem Laden der Karte akzeptieren Sie die Datenschutzerklärung von Google.
Mehr erfahren

Karte laden

Sie möchten verkaufen?

Senden Sie uns jetzt eine unverbindliche Verkaufsanfrage – wir begleiten Sie zuverlässig beim gesamten Verkaufsprozess.

Zur Verkaufsanfrage »

Objektangaben

Kaufpreis
859.000 €
Preiseinheit
EUR
Wohnfläche
446 m²
Zimmer
17
Grundstücksfläche
242 m²
Anzahl Zimmer
17
Anzahl Schlafzimmer
11
Anzahl Badezimmer
6

Energieausweis

Baujahr
1960
Energieausweistyp
Verbrauch
Energieausweis gültig bis
2035-03-24
Endenergieverbrauch
134.60 kWh/(m²*a)
Energieeffizienzklasse
E
Energieausweis Baujahr
1960
Wesentlicher Energieträger
Gas
Energieausweis
2014
Befeuerungsart
Gas
Heizungsart
Etagenheizung

Energieverbrauch

  • A+
  • A
  • B
  • C
  • D
  • E
  • F
  • G
  • H
0255075100125150175200225250
134,60 kWh/(m²*a)
Anfrageformular
* Pflichtfelder
 
   Ihre Daten werden verschlüsselt übertragen, vertraulich behandelt und nicht an Dritte weitergegeben.
Ähnliche Immobilien

Finden Sie hier eine Auswahl von ähnlichen Objekten aus der Umgebung.

51375 
Leverkusen
-Schlebusch
Zimmer: 7
  ·  
Wohnfl.: 175 m²
  ·  
Grdstfl.: 451 m²
730.000 € 
57635 
Weyerbusch
Badezimmer: 2
  ·  
Zimmer: 7
  ·  
Wohnfl.: 174 m²
225.000 € 
56410 
Montabaur / Elgendorf
Badezimmer: 1
  ·  
Zimmer: 6
  ·  
Wohnfl.: 150 m²
195.000 € 
57080 
Siegen / Eiserfeld
Badezimmer: 3
  ·  
Zimmer: 6
  ·  
Stellplätze: 3
339.000 € 
51597 
Morsbach
Zimmer: 6
  ·  
Wohnfl.: 123,15 m²
  ·  
Grdstfl.: 964 m²
260.000 € 
65604 
Elz
Badezimmer: 4
  ·  
Zimmer: 10
  ·  
Stellplätze: 1
264.000 € 
57537 
Wissen VG
Badezimmer: 2
  ·  
Zimmer: 5
  ·  
Stellplätze: 1
237.000 € 
51597 
Morsbach / Wendershagen
Badezimmer: 1
  ·  
Zimmer: 4
  ·  
Wohnfl.: 90 m²
149.000 € 
57537 
Wissen
Badezimmer: 1
  ·  
Zimmer: 6
  ·  
Wohnfl.: 130 m²
185.000 € 
57518 
VG Betzdorf
Badezimmer: 2
  ·  
Zimmer: 5
  ·  
Wohnfl.: 215 m²
299.000 € 
57629 
Merkelbach
Badezimmer: 1
  ·  
Zimmer: 5
  ·  
Wohnfl.: 129,84 m²
199.000 € 
57627 
Hachenburg
Badezimmer: 2
  ·  
Zimmer: 6
  ·  
Wohnfl.: 107 m²
225.000 €