Diese charmante Erdgeschosswohnung verbindet Großzügigkeit mit praktischer Wohnqualität – perfekt für Paare, kleine Familien oder Kapitalanleger, die ein gepflegtes Zuhause mit Mehrwert suchen.
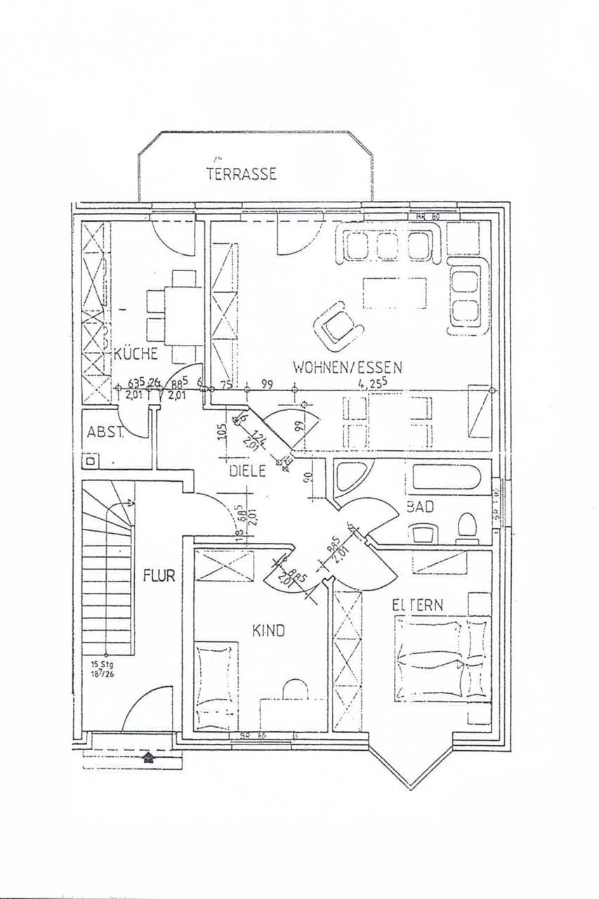
Auf ca. 77 m² Wohnfläche bietet die Wohnung ein durchdachtes Raumkonzept mit zwei Schlafzimmern, die als Rückzugsorte für Ruhe und Privatsphäre dienen – ideal auch für Homeoffice oder Kinderzimmer. Der offen gestaltete Wohn- und Essbereich ist lichtdurchflutet und schafft eine angenehme, einladende Atmosphäre.
Ein echtes Highlight ist der gepflegte Garten, der direkt vom Wohnbereich zugänglich ist – eine grüne Oase für entspannte Stunden, gesellige Abende oder den eigenen kleinen Gemüsegarten.
Das Badezimmer überzeugt mit Dusche und Badewanne, während pflegeleichte Kunststofffenster für ein helles Raumgefühl und eine gute Energieeffizienz sorgen.
Komfortabel wird es auch bei der Parkplatzsuche: Ein Garagenstellplatz ist bereits im Mietverhältnis enthalten – ein weiterer Pluspunkt im Alltag.
Die Wohnung ist derzeit für 625 € Gesamtmiete vermietet, darin enthalten sind 54 € für die Garage – ein interessantes Objekt sowohl zur Eigennutzung mit Gartenwunsch als auch für Kapitalanleger mit Weitblick.
– Großzügige Erdgeschosswohnung mit 77 m² Wohnfläche, perfekt zugeschnitten auf Paare oder die kleine Familie
– Gepflegter Garten mit Terrasse
– Zwei Schlafzimmer – Rückzugsorte mit Ruhepotenzial
– Heller Wohn- und Essbereich – offen gestaltet, mit viel Tageslicht für ein angenehmes Wohnambiente
– Balkon – für entspannte Stunden an der frischen Luft
– Kunststofffenster – pflegeleicht, energiesparend und lichtdurchflutet
– Badezimmer mit Dusche und Badewanne – praktisch & komfortabel vereint
– Ein Garagenstellplatz gehört zur Wohnung. Optional steht ein weiterer Außenstellplatz zur Verfügung und rundet das Angebot ab.
– Kaltmiete: 625€ zzgl. 54€ Garage
Eine Wohnung, die sowohl funktional als auch gemütlich überzeugt – ideal für Paare, kleine Familien oder alle, die großzügiges Wohnen schätzen.
In einer ruhigen und dennoch zentralen Umgebung gelegen, überzeugt diese Wohngegend durch kurze Wege zu allen wichtigen Einrichtungen des täglichen Lebens. Einkaufsmöglichkeiten sind bequem zu Fuß erreichbar, und das lebendige Stadtzentrum lädt mit seinem vielfältigen Angebot zum Bummeln und Verweilen ein.
Familien profitieren von der Nähe zu verschiedenen Schulen und Kindertagesstätten, die schnell und sicher erreichbar sind. Der öffentliche Nahverkehr ist bestens angebunden: Eine Bushaltestelle befindet sich praktisch vor der Haustür, und der Bahnhof ist in wenigen Minuten zu erreichen – ideal für Pendler und Ausflügler.
Die Nähe zur Autobahn ermöglicht eine schnelle Verbindung zu umliegenden Städten und Regionen, ohne dass die Wohnqualität darunter leidet. Die Nachbarschaft besticht durch ihre ruhige Atmosphäre und ein harmonisches Miteinander, sodass sich hier Wohnkomfort und Lebensqualität perfekt ergänzen.